5 Expert-Approved Full Bathroom With Laundry Floor Plans
If you’re tight on space, but need a real bathroom and a laundry, it’s important to carefully design the room so it works well for your needs while looking stylish. The right layout can fit a shower (or tub), vanity, toilet, and washer–dryer, all in one space, without feeling jammed together. In this guide, we’ve gathered 5 expert-approved full bathroom with laundry floor plans that balance efficiency and storage, while allowing for a smooth flow. Whether you’re renovating a bathroom, getting extra out of the space in a basement, or planning a new build, these layouts can help you choose a configuration that’s practical for your family today and will be resale-friendly in the future.
5×10 Galley Bathroom And Laundry Combo With Stacked Washer And Dryer
With all of the plumbing fixtures placed on one wall and ending with a full-width shower, this design gets the most out of its narrow 5′×10′ footprint.

Layout Details: This narrow, galley style bathroom positions all of the plumbing fixtures along one wall with a walkway on the other side to make the most out of its narrow design. As you enter from the short end (west side) you immediately see the stacked washer/dryer to your right with a pull down counter on your left. This countertop can be lowered for clothes ironing and sorting when needed without eating into the floor space. As you continue past the appliances, you’ll find a compact vanity, then the toilet, and finally the shower, which occupies the full width at the far right (east side).
Dimensions:
- Room size: 5′ × 10′ (50 sq ft)
- Stacked washer/dryer: 27″ W × 28″ D
- Vanity: 27″ W × 24″ D
- Shower alcove: 60″ W × 30″ D
- Central aisle: 36″ (comfortable passing/ADA-adjacent target in a galley)
- Folding counter depth (pull-down): 12 to 16″ when down (stows flush against the wall when not in use)
- Typical front clearance targets: 30 to 36″ in front of appliances and the vanity for door swing and use
Design Tips:
- Utilize wall space. Add a pull-down counter in front of the washer-dryer or vanity for more work surface.
- Use reflective finishes. With a long room like this, it’s a good idea to use light color or reflective materials to help brighten things up.
- Add both task and ambient lighting. Pair LED strip lighting under the vanity and above the mirror for visibility with moisture-rated ceiling lights for general illumination.
- Add vertical storage. Use the space above the appliances for extra storage for cleaning supplies.
- Ensure there’s adequate ventilation. With a shower and laundry in one room, install a high-capacity exhaust fan to control moisture and prevent mold and odor buildup.
- Keep the shower enclosure clear. Consider a clear glass shower door instead of a curtain to promote a more open feel.
8×8 Zoned Bathroom With Laundry Nook Layout
The zoned design creates two areas with a right-side laundry nook, and left side vanity, toilet, and shower with a center aisle allowing for smooth circulation in this compact 8′×8′ footprint.

Layout Details: This square 8×8 plan places all of the bathing fixtures along the left side and reserves the right side for a compact laundry nook with stacked washer and dryer and a countertop. You enter at the bottom-right, and ahead on the right is the laundry run with a stacked washer/dryer unit followed by a counter for folding clothing. On the opposite side of the room, there’s a vanity placed in the front-left corner, followed by the toilet on the mid-left wall, and a 3′×3′ corner shower. This arrangement keeps most moisture away from the laundry by a 33″ aisle.
Dimensions:
- Room size: 8′ × 8′ (64 sq ft)
- Shower: 3′ × 3′
- Vanity: 24″ W × 30″ D
- Toilet front clearance target: 30 to 36″
- Stacked washer/dryer: 30″ W × 28″ D
- Folding counter: 30″ W × 22″ D
- Main passage: 36″ clear
- Central working space: 3′ × 4′
- Cross-aisle between zones: 33″
- Entry: 28″ pocket door or slider on one corner saves swing space.
- Long wall (8′): 60″ tub/shower at the back, 18″ linen tower, then a 30″
- Adjacent 8′ wall: 30″ toilet tucked behind the linen tower for partial privacy. ? The linen tower is at the back beside your tub ????
- Laundry zone: 30″ × 34″ front-loading washer and matching dryer under an L-shaped countertop that wraps the corner opposite the tub; counter height 40″, depth 28″. Overhead cabinets (12″ deep) span both units.
- Clearances: 40″ turning radius between vanity and laundry counter allows hamper access.
Design Tips:
- Optimize corner space near the entry: The small recess near the entry can hold a slim cabinet, laundry hamper, or storage tower and can be used to keep toilet paper, linens, or detergents.
- Go vertical for storage: Install things that utilize the wall space like towel ladders, high hooks, or a tall linen cabinet to keep the floor clear.
- Elevate the laundry nook with built-ins: Enclosing the washer and dryer in a cabinet surround with overhead storage will help you get the most from the laundry nook area.
- Use durable moisture-resistant materials: Choose materials like porcelain tile, quartz countertops, and high-gloss paint that can better resist moisture and are easy to clean.
7×12 Walk-Through Laundry Bathroom Layout
This long linear passage bathroom layout delivers an efficient walk-through style circulation, with task zones, and zero bottlenecks in a compact footprint.

Layout Details: This design functions as a pass-through between two rooms, like a closet or bedroom, with doors at both short ends. Traffic moves through a 36″ central aisle, while the different work zones sit to each side. There’s a laundry run along the left wall, a bath zone along the right, and a vanity and storage area near the lower end. The result is a true “galley” bathroom that allows for ease of movement while keeping everything easily accessible.
Dimensions:
- Room size: 7′ × 12′ (84 sq ft)
- Doors: 36″ (south), 32″ (north)
- Central aisle: 36″ (top/bottom), 3′ × 4′ open area at the center
- Shower: 48″ W × 24″ D
- Toilet width noted: 30″
- Vanity niche side clearances: 15″ + 24″
- Washer: 32″ W × 24″ D
- Dryer: 32″ W × 24″ D
Design Tips:
- Enclose the laundry run. Add a shallow cabinet with full-height doors or sliding panels to contain the stacked washer/dryer. This is helpful to control noise, hide clutter, and create a shelf for detergents.
- Choose the right vanity. Choose a vanity with drawers and a recessed medicine cabinet to gain extra space.
- Optimize the shower end. Add a recessed shelf between the studs to create a place for shampoos and conditioners.
- Plan lighting in layers. Place bright general lighting down the center to illuminate the corridor and use task sconces at the vanity, and a moisture-rated downlight at the shower. Consider also adding an LED strip inside the laundry enclosure for extra visibility.
- Ventilate for dual use. Specify a high-CFM, humidity-sensing exhaust fan sized for both shower and laundry moisture.
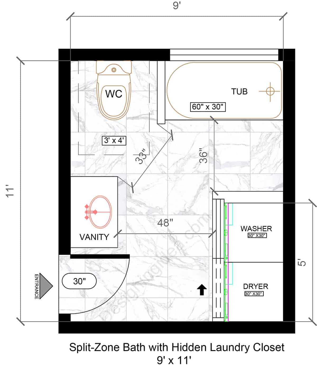
9×11 Split-Zone Bathroom with Hidden Laundry Closet Layout
This clever bathroom and laundry combo keeps the washer and dryer hidden behind doors on its own wall, while grouping the bath fixtures along two walls to keep the room feeling open and accessible.

Layout Details: With its concealed laundry area, this bathroom feels luxurious with a spa-like tub deck. This plan splits the room into two clear zones, with a traditional bath on the upper side and a closed laundry closet on the right. You enter at the bottom left through a 30″ door with the vanity sitting just inside to your left and the laundry closet right ahead. The toilet is tucked in between the vanity and shower for privacy, and a 60″×30″ tub runs along the upper side. Opposite the bathroom fixtures, a 5′wide laundry closet hides a side by side washer and dryer to help keep noise and clutter out of sight.
Dimensions:
- Room size: 9′ × 11′ (99 sq ft)
- Door: 30″ (south-west)
- Tub: 60″ W × 30″ D
- Washer: 30″ W × 30″ D
- Dryer: 30″ W × 30″ D
- Laundry closet width: 5′
- Central aisle: 48″
- Walk path at tub entry: 33″
- Typical front working clearance at fixtures: 36″
Design Tips:
- Treat the laundry as cabinetry. Build a full-height surround with doors over the laundry (side by side 30″×30″ units). Choose a vented or louvered panel and include a shallow upper shelf for detergents and other items.
- Control noise and moisture. Add rubber pads under machines, and weather-strip the closet doors. Add a high-CFM, humidity-sensing exhaust fan sized for both tub steam and laundry use.
- Make the tub zone feel larger. Use a frameless glass enclosure to keep it from feeling closed off.
- Add a recessed niche. Place these between the studs to create extra space for accessories.
- Upgrade the vanity near the door. Choose a deep, drawer-dominant vanity with a recessed style medicine cabinet above.
- Go for a cohesive look. Match hardware and cabinet finishes (faucets, pulls, hinges) across the bath and laundry so the concealed closet feels integrated and not like an add-on.
10×10 Universal-Access Bathroom And Laundry Combo With Side-by-Side Machines
This ADA-compliant bathroom design offers a 60″ turning circle with 36 to 40″ approach zones that deliver barrier-free access while keeping laundry, grooming, and shower tasks efficient and accessible.

Layout Details: This square, accessibility-minded bathroom keeps a full 60″ turning circle open in the center while placing all of the necessary fixtures around the perimeter. You enter through a 36″ door on the lower wall and have a washer and dryer sitting side-by-side on the left side with a pull-out hamper and toilet above them. Opposite, a long double-sink vanity sits on the right wall for two-person use. Past the vanity is a 30″ × 54″ curbless shower that occupies the upper-right corner with linear drainage at the back. This setup allows straight, barrier-free entry to the shower and all fixtures down the center aisle.
Dimensions:
- Room size: 10′ × 10′ (100 sq ft)
- Door: 36″ wide
- Turning circle (center): 60″ diameter
- Shower: 30″ W × 54″ L (curbless entry)
- Vanity: 0″ D × 54–60″ L (double sink)
- Washer: 30″ W × 30″ D
- Dryer: 30″ W × 30″ D
- Pull-out hamper: 24″ W × 24″ D
- Typical clearances: 36 to 40″ aisles; 3′ × 4′ clear at WC
Design Tips:
- Preserve the 60-inch turning circle. Keep the center free of obstructions so a wheelchair can turn. Place hampers, baskets, and trash cans under the vanity counters or against walls rather than in the open floor area.
- Select front-loading, pedestal-height appliances. Front-loading washer and dryer units mounted on 10 to 12 inch pedestals keep the doors at a comfortable seated reach.
- Use storage under the washer and dryer pedestals. The appliance height creates an extra bonus drawer storage underneath.
- Use a curbless, linear-drain shower. The 30″ × 54″ shower should have a flush entry for ease of access.
- Add a fold-down bench and a handheld shower. This will make things easier to reach and increase accessibility for seated or standing use.
- Provide sturdy blocking for grab bars. Install solid backing behind the shower walls and beside the toilet so grab bars can be added now without opening walls later on.
- Choose lever-style or touch-free fixtures. Install lever handles on faucets and bidet-style toilet controls or motion-sensor taps to accommodate those with limited grip strength.
- Integrate non-slip finishes and gently sloped floors. Specify a slip-resistant porcelain or LVT flooring (≥ 0.42 wet DCOF) and slope the entire wet room 1⁄8″ per foot toward the shower so water migration is controlled.
For more like this last plan, take a look at our 8×10 bathroom designs.